Project 71
Alshafie Housing Co
Ground floor
Apartment with an area of 215 square meters + an outdoor terrace of 160 square meters
- Guest and living room
- 3 master bedrooms
- 4 bathrooms
- Laundry room
- Maid’s room
- Garage for each apartment
- Separate entrance for each apartment
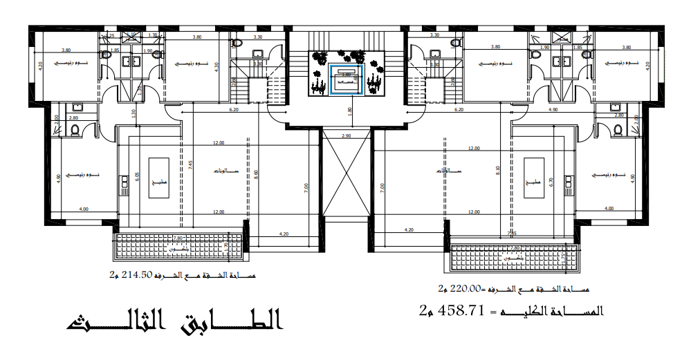
Apartment with an area of 220 square meters + an outdoor terrace of 200 square meters
- Guest and living room
- 3 master bedrooms
- 4 bathrooms
- Laundry room
- Maid’s room
- Garage for each apartment
- Separate entrance for each apartment
Project Location
For those who seek an exceptional lifestyle, find a home that suits you.













































